粉状物料储库卸料用电动流量控制阀,德国标准设计制造并升级,已超越德国同类产品。
电动执行器为法国Bernard、EMD或中国的天津新伯、武汉华易。可根据客户要求选择。
设计特点
· 电动执行器:原装法国Bernard、EMD或中国的天津新伯、武汉华易
· 精准装载和测量
·厚实耐磨的毛毡,密封严密无泄漏 ·焊接外壳,更耐用,更可靠
·ZGMn13-2 材料耐高温耐磨损
· 电动控制器4-20mA 输入/输出信号
·密封结构是可更换抽屉式的紧密模块设计,易维护且维修成本低 ·密封材料:高密度优质羊毛毡
· 最大工作温度:300℃
·噪音低,振动小,服务寿命长
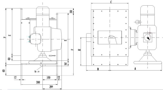
尺寸图:

技术参数
尺寸(mm) | B200 | B250 | B300 | B400 | B500 | B630 | B800 |
最大流量(m³/h) | 40-260 | 60-360 | 70-480 | 90-650 | 110-820 | 140-1450 | 170~1800 |
阀体直径宽(mm) | 200 | 250 | 300 | 346 | 346 | 346 | 440 |
阀体直径长(mm) | 346 | 346 | 346 | 400 | 500 | 600 | 800 |
流通面积(m²) | 0.012 | 0.014 | 0.017 | 0.026 | 0.032 | 0.051 | 0.08 |
最大扭矩(Nm) | 250 | 250 | 500 | 1000 | 1000 | 2000 | 2000 |
电动执行器角度(°) | 90 | ||||||
输入电压(V) | 380或220 | ||||||
输入&输出信号(mA) | 4~20 | ||||||
规格(单位mm)
尺寸 | A | B | C | D | E | F | H | 重量(Kg) |
200 | 435 | 175 | 290 | 507 | 375 | 484 | 257 | 89 |
250 | 460 | 200 | 340 |
398 |
520 |
272 | 105 | |
300 | 485 | 225 | 390 | 509 | 121 | |||
350 | 510 | 250 | 440 | 125 | ||||
400 | 535 | 275 | 490 | 500 | 137 | |||
500 | 585 | 325 | 590 | 655 | 157 | |||
630 | 655 | 390 | 730 | 655 | 575 | 730 | 305 | 188 |
800 | 1074 | 483 | 900 | 714 | 745 | 900 | 310 | 205 |
特殊规格可定制


